region
Zmieniona organizacja ruchu w okolicach nekropolii. W wielu miejscach wprowadzona została jeszcze przed 1 listopada. Zakaz postoju, ograniczenia prędkości i zakaz wjazdu – co się zmieniło w poszczególnych lokalizacjach? Warto sprawdzić jeszcze przed wyruszeniem w trasę. Szczegółowe informacje w tym zakresie znaleźć można na stronach internetowych komend powiatowych policji w regionie, zamieściliśmy je również poniżej.
Suwałki
Zmiany w organizacji ruchu czekają kierowców z związku ze zbliżającym się świętem Wszystkich Świętych. Jak informuje Zarząd Dróg i Zieleni w Suwałkach utrudnienia potrwają od 29 października od godz. 18:00 do 4 listopada do godz. 7:00 i będą dotyczyć okolic Cmentarza Parafialnego przy ul. Bakałarzewskiej oraz Cmentarza Komunalnego przy ul. M. Reja.
Na ulicy Bakałarzewskiej obowiązywać będzie obustronny zakaz zatrzymywania się na odcinku od mostu na rzece Czarna Hańcza do ulicy Grunwaldzkiej (z wyjątkiem zatok parkingowych), zakaz skrętu w lewo w ulicę Zarzecze i ulicę Staszica oraz zamknięcie ścieżki rowerowej wzdłuż ulicy Bakałarzewskiej od mostu do ulicy Grunwaldzkiej.
Parkingi wyznaczono przy ulicach: Zarzecze – przy stadionie Wigry, Bakałarzewskiej – wzdłuż cmentarza po lewej stronie i Grunwaldzkiej – za cmentarzem (na placu nowego bazaru miejskiego i terenie giełdy samochodowej).
Na ulicy Traktorzystów obowiązywać będzie zakaz zatrzymywania się po obu stronach jezdni – na odcinku od ul. Bakałarzewskiej do ul. B. Chrobrego.
Na ulicy Grunwaldzkiej wprowadzony zostanie obustronny zakaz zatrzymywania się na odcinku od Ronda profesora Franciszka Edwarda Szczepanika do Ronda Zesłańców Sybiru (z wyjątkiem zatok parkingowych).
Na ulicy 24 Sierpnia również obowiązywać będzie obustronny zakaz zatrzymywania się – od ul. Zarzecze do Ronda Zesłańców Sybiru.
Na ulicy Zarzecze wprowadzony zostanie obustronny zakaz zatrzymywania się na całej długości ulicy oraz nakaz skrętu w prawo w kierunku centrum miasta.
Na ulicy Staszica obowiązywać będzie nakaz skrętu w prawo w kierunku Ronda Powstańców Styczniowych oraz zakaz zatrzymywania się na odcinku od ul. Bakałarzewskiej do ul. S. Konarskiego (z wyjątkiem zatok parkingowych).
Na ulicy Reja wprowadzony zostanie zakaz zatrzymywania się po obu stronach jezdni – na odcinku od wjazdu do żwirowni do Ronda Ofiar Obławy Augustowskiej w Lipcu 1945 roku na Suwalszczyźnie.
Parking wyznaczono w sąsiedztwie cmentarza, również za cmentarzem – przy bramie nr 2.
========================================================================
Ełk
Na zmiany w poruszaniu się ulicami Ełku w okolicach cmentarzy muszą przygotować się kierowcy. To w związku z Dniem Wszystkich Świętych oraz Zaduszkami.
Zmiany będą obowiązywały od godz. 6.00 1 listopada do 2 listopada do godz. 20.00 – mówi Radiu 5 Agata Kulikowska de Nałęcz, oficer prasowy Komendy Powiatowej Policji w Ełku.
W ubiegłym roku Dzień Wszystkich Świętych i Dzień Zaduszny na drogach powiatu ełckiego był bardzo bezpieczny. Rzeczniczka ełckich policjantów ma nadzieję, że równie bezpiecznie będzie w tym roku.
Władze miasta zachęcają do korzystania w tych dniach z bezpłatnej komunikacji miejskiej. Tym, którzy zdecydują się pojechać na groby bliskich samochodem udostępnione zostaną dwa nowe parkingi na ul. Towarowej i skrzyżowaniu ul. Towarowej i Krzemowej. Tymczasowy parking powstanie też na terenie targowiska miejskiego.
Szczegóły zmian dostępne są na stornie internetowej ełckiej policji oraz Urzędu Miasta Ełku.
=======================================================================
Olecko
Od czwartku (30.10) do 5 listopada będzie obowiązywała czasowa zmiana w organizacji ruchu przy oleckim cmenratrzu. To z uwagi na wzmożony ruch przed Dniem Wszystkich Świętych.
Mówił Damian Rytwiński, oficer prasowy Komendy Powiatowej Policji w Olecku.
========================================================================
Pisz
Bez większych zmian i utrudnień wokół cmentarzy w powiecie piskim. W związku z Dniem Wszystkim Świętych nowe zasady zostały wprowadzone jedynie w Rucianem-Nidzie.
Na co powinni przygotować się kierowcy 1 listopada?
Mówiła Anna Szypczyńska, oficer prasowy Komendy Powiatowej Policji w Piszu.
========================================================================
Giżycko
Zmiany w organizacji ruchu w okolicach cmentarza komunalnego w Giżycku. Będą one obowiązywały od 31 października do 3 listopada. To w związku ze świętami.
Na co powinni przygotować się kierowcy?
Powiedziała Radiu 5 Iwona Chruścińska z Komendy Powiatowej Policji w Giżycku.
W okolicach miejscowej nekropolii pojawi się więcej policyjnych patroli. Mundurowi apelują o stosowanie się do poleceń funkcjonariuszy i oznakowania tymczasowego.
=========================================================================
Węgorzewo
O zmianach w organizacji ruchu w okresie Wszystkich Świętych informuje Komenda Powiatowa Policji w Węgorzewie.
Jakie zmiany czekają kierowców?
Mówiła Agnieszka Filipska z miejscowej komendy policji.
Jak dodaje, funkcjonariusze pomogą wszystkim bezpiecznie spędzić ten szczególny czas.
========================================================================
Gołdap
Zwiększonego ruchu w okolicach nekropolii spodziewają się 1 i 2 listopada policjanci w regionie.
Na możliwe utrudnienia na DK 65 przy ul. Gumbińskiej przygotowani są funkcjonariusze drogówki w Gołdapi.
Marta Domańska, oficer prasowy miejscowej Komendy Powiatowej Policji wskazuje, gdzie jeszcze należy spodziewać się zwiększonego ruchu.
W okolicach niektórych cmentarzy obowiązywać będzie zakaz zatrzymywania się i postoju.
Oficer Domańska przypomina, że poza obszarem zabudowanym, piesi zobowiązani są do posiadania elementów odblaskowych. Nie chodzi tylko o uniknięcie mandatu, ale przede wszystkim o względy bezpieczeństwa.
========================================================================
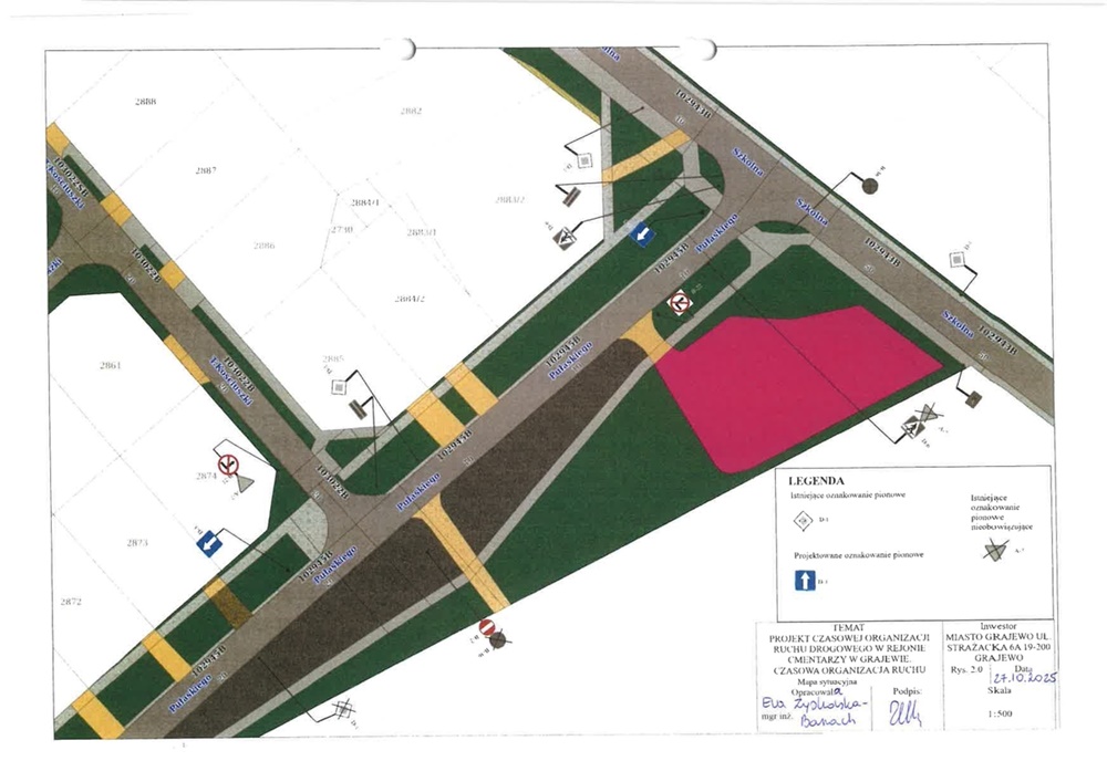
Grajewo
Zmieniona organizacja ruchu w okolicach grajewskiego cmentarza obowiązywać będzie od piątku, 31 października. Od godziny 8.00 wprowadzony zostanie ruch jednokierunkowy z możliwością wjazdu na ul. Pułaskiego od ul. Szkolnej, na odcinku 350 m od ul. Szkolnej, do skrzyżowania ul. Pułaskiego i Bema. Dodatkowo w rejonie skrzyżowania ul. Szkolnej z ul. Cmentarną i Przemysłową wyznaczone będzie miejsce dla policji i organizatora uroczystości.
Czasowa organizacja ruchu obowiązywać będzie do godziny 8.00 w poniedziałek, 3 listopada.
Wszędzie zostaną postawione znaki drogowe informujące o nowych zasadach ruchu, informuje Sylwia Gosiewska, oficer prasowy Komendy Powiatowej Policji w Grajewie. Funkcjonariusze przypominają o konieczności stosowania się do poleceń funkcjonariuszy kierujących ruchem na drogach.
=======================================================================
Sejny
Wzorem lat ubiegłych, Starostwo Powiatowe w Sejnach wprowadzi tymczasową organizację ruchu w rejonie sejneńskich cmentarzy. Zmiany będą obowiązywać od 31 października (godz. 15:00) do 3 listopada (godz. 9:00).
Dojazd na cmentarz możliwy będzie ulicą Marii Konopnickiej, gdzie wprowadzony zostanie ruch jednokierunkowy – od ulicy Powstańców Sejneńskich do ulicy Głowackiego. Wyjazd odbywać się będzie ulicą Głowackiego.
Na ulicy Marii Konopnickiej, po lewej stronie drogi, obowiązywać będzie zakaz zatrzymywania się. Taki sam zakaz wprowadzono również przy drodze prowadzącej w kierunku Zaleskich.
W newralgicznych punktach ruchem kierować będą policjanci. Starostwo apeluje do kierowców o stosowanie się do poleceń funkcjonariuszy oraz do tymczasowego oznakowania, co pozwoli zachować płynność i bezpieczeństwo ruchu.
Dla odwiedzających przygotowano główny parking na placu targowym przy ulicy Wileńskiej.















